HOSPITAL ÁNGELES MOCEL
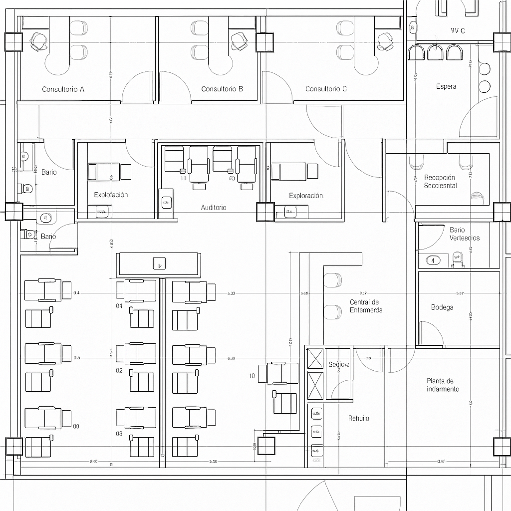
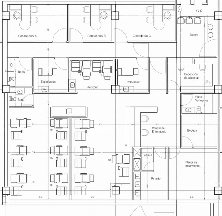
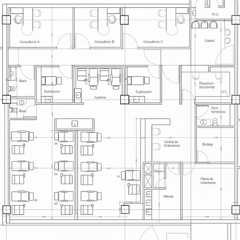
El complejo incluye una torre de consultorios médicos y áreas modernas equipadas con tecnología avanzada para servicios de diagnóstico, urgencias, hospitalización y atención especializada. El edificio presenta una infraestructura amplia y funcional, diseñada para brindar atención médica integral en un entorno urbano.


UBICACIÓN: San Miguel Chapultepec, Ciudad de México
AÑO: 2020
PARTICIPACIÓN, La arquitecta Soledad Ramos Herrera realizó una intervención en la imagen exterior y remodelación del área de hemodiálisis y farmacia.




