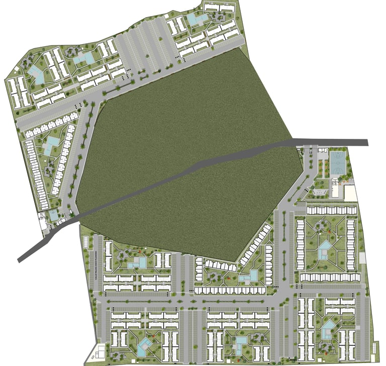
REAL DE LAS PALMAS III






UBICACIÓN: Tlayacapan, Morelos, México.
METROS DE CONSTRUCCIÓN: 39,000 m²
AÑO: 2023
PARTICIPACIÓN, Diseño y Desarrollo de proyecto ejecutivo del Arq. Jorge Alejandro Calvillo Corona para Construkom.






UBICACIÓN: Tlayacapan, Morelos, México.
METROS DE CONSTRUCCIÓN: 39,000 m²
AÑO: 2023
PARTICIPACIÓN, Diseño y Desarrollo de proyecto ejecutivo del Arq. Jorge Alejandro Calvillo Corona para Construkom.
